
● Non – stop down suck feeder.
● Pneumatic board for sheet trimming.
● Down suck feeding to protect the printing.

● Selectable left and right side push lays to ensure accurate alignment.
● Advanced non-stop adjustment of feeding timing, reduce down time.
● Front gauge non-stop back and forth adjustable to accommodate variation in gripper margin.

● Die-cutting base plate and knife template rotary device.
● The connection between the die cutting plate and the die cutting frame adopts the form of grasping snail and screws, adopt central positioning system, which is fast and accurate.
● The die-cutting plate frame and the die-cutting steel backing plate are locked by the Japanese SMC gas volume regulator to avoid the situation that the locking and installation of the upper frame is not in place, and effectively avoid the loss caused by the operation of human factors.

The system features a unique worm gear crank mechanism driving an toggle-type high-precision flatbed die-cutting lower workstation. With short cutting stroke and large dynamic angle, it enables efficient multi-up high-speed operation.

● Stationary middle stripping board, coupled with zero jerk, smooth upper frame motion curve with extra punch at the moment of impact to obtain cleaner waste removal.
● Gripper bar register block at outlets of Stripping Station ensures the accuracy of stripping.
● Center line system for quick stripping tool set up and change over, compatible with centerline.
● Front edge waste removal system removes and transfers waste edge outside the machine via conveyor belt.

The gripper stripping device can automatically convey gripper waste edges out of the machine and achieve four-frame stripping.

The automatic batch delivery lifting table device can automatically set the number of stacked sheets, and cooperate with the conveyor belt to convey the paper outside the machine. The paper surface is not easily scratched or abraded during the paper stacking process (Special for batch delivery, optional)

High pile stacking table adopts lifting device, paper delivery structure can pull the whole pile of paper out of the machine.Main delivery device and auto non-stop roll-up curtain type auxiliary collecting device switch automatically without any operation, significantly enhancing productivity.
-2.jpg)
The whole machine adopts a centralized automatic oil supply system to ensure that the transmission parts are not short of oil.
| Conveying Unit | BHT-1500EFC/1650EFC/1900EFC/2100EFC |
| 01. High precision bottom suction paper feeder with non-stop suction nozzle at the bottom, uses vacuum adsorption mechanism to send corrugated board into the paper pressing roller, effectively avoiding sheet scratches during feeding | 〇 |
| 02. Electric side pushing baffles and pneumatic side pushing baffle (right sides) | 〇 |
| 03. Electrically controlled paper feed roller | 〇 |
| 04. Paper Presser and front gauge, double sheet detecter respond accurately | 〇 |
| 05. Front hook adjustment device, paper bending up and down can be adjusted | 〇 |
| 06. Non-stop adjusting device for feeding step | 〇 |
| 07. The fine-tuning device for the front baffle’s front and rear positions can be finely adjusted according to the gripper margin size | 〇 |
| 08. Right and left side positioning push gauge to ensure precise side positioning of the board | 〇 |
| 09. Blow-suction dual-purpose vacuum pump of German Becker brand | 〇 |
| Die-cutting Unit | |
| 01. The entire machine casting is made of QT-700-2 nodular cast iron | 〇 |
| 02. Imported worm gear, worm gear and 40cr crankshaft | 〇 |
| 03. The variable-speed worm gear transmission mechanism features a short die-cutting stroke and a large moving angle, which is conducive to the high-speed operation of small connection points in multiple impositions. It has high production efficiency and is not prone to the scattering of the imposed layout | |
| 04. A complete set of imported anodized aluminum alloy gripper bars and positioning structure, fine steel gripper teeth and supporting gripper plates. The gripper bars adopt an adjustable gripper bar structure | 〇 |
| 05. Imported main drive chain | 〇 |
| 06. Imported intermittent splitter | 〇 |
| 07. Gear transmission, with accurate precision | 〇 |
| 08. Imported torque limiting overload protector | |
| 09. Imported pneumatic clutch brake device | 〇 |
| 10. Pressure regulating device, which can realize accurate control of pressure through PLC touch screen buttons | 〇 |
| 11. Die-cutting base plate and die mould rotary device | 〇 |
| 12. The 15mm die-cut steel backing plate is equipped with a 5mm combined lower backing plate center positioning structure +/-0.9mm vertical and horizontal fine-tuning device, which makes plate changing fast and simple, reducing the time for plate replenishment | 〇 |
| 13. The connection between the die cutting plate and the chase adopts the form of grasping snail and screws, adopt central positioning system, which is fast and accurate | 〇 |
| 14. The die-cutting chase and the lower mat are locked by the Japan SMC gas regulator, which can prevent improper locking of the upper frame caused by human error during installation | 〇 |
| 15. SIEMENS(INNOMOTICS) brand main motor | 〇 |
| 16. Japan SMC air pressure detection device, low air pressure alarm | 〇 |
| 17. Equipped with an air storage tank to ensure the stability of the air pressure of the whole machine | 〇 |
| 18. The whole machine adopts a centralized automatic oil supply system to ensure that the transmission parts are not short of oil | 〇 |
| Stripping Unit(Three frames and four sides) | |
| 01. Adopt the stripping mechanism of three frames | 〇 |
| 02. Users can choose whether to use the stripping function by lifting upper stripping frame | 〇 |
| 03. Male-female die plates to achieve versatile stripping | |
| 04. The installation of the middle stripping board adopts the center line quick positioning installation method, and the stripping board can be quickly installed. The upper and lower frames operate while the middle frame remains stationaryso there are fewer connection points, and the plate is not prone to coming apart | 〇 |
| 05. Funnel type waste collection device | 〇 |
| 06. The gripper stripping device can automatically convey gripper waste edges out of the machine and, with the stripping slideway, they can automatically slide into the main stripping channel | 〇 |
| Delivery Unit | |
| 01. Roll-up curtain type auxiliary paper delivery device, can realize non-stop paper delivery | 〇 |
| 02. High pile stacking table adopts lifting device, paper delivery structure can pull the whole pile of paper out of the machine.(Special for high pile stacking delivery) | 〇 |
| 03. Paper delivery alignment device | 〇 |
| 04. Photoelectric detection of upper and lower limit switches can effectively prevent the paper stacking table from excessive paper pile stacking and paper curling up | 〇 |
| 05. Spring chain adjustment device: Adjusting the tension of spring chain can reduce the inertia impact during the steerings of the gripper bar, and maintain the balanced tension of the chain | 〇 |
| 06. The non-stop rolling curtain auxiliary paper delivery device and the automatic batch delivery lifting table device can be used alternately. The automatic batch delivery lifting table device can automatically set the number of stacked sheets, and cooperate with the conveyor belt to convey the paper outside the machine (Special for batch delivery, optional) | △ |
| 07. The automatic batch delivery lifting table uses conveyor belts for paper delivery. The paper surface is not easily scratched or abraded during the paper stacking process (Special for batch delivery, optional) | △ |
| 08. The external paper delivery rack and the batch delivery lifting table can also be moved aside to switch to the high pile stacking delivery unit | 〇 |
| Electrical unit | |
| 01. Germany Siemens PLC control system | 〇 |
| 01. The die-cutting unit and the delivery unit adopt 10.4-inch and 7-inch Germany Siemens touch screens | 〇 |
| 02. The machine adopts Germany Moeller brand relays, AC contactors, air switches and buttons, to ensure the stability and reliability of electrical parts | 〇 |
| 03. The machine adopts Japanese Omron brand photoelectric switch, optical fiber, encoder and sensor, to ensure the accuracy and stability of electrical detection of each part of the action | 〇 |
Note: This allocation sheet is for reference only, the formal allocation sheet is subject to the contract. Standard configuration: 〇; Optional: △
| Model | BHT-1500EFC | BHT-1650EFC | BHT-1900EFC | BHT-2100EFC | |
| Max. Sheet Size | 1520×1100mm | 1650×1200mm | 1900×1400mm | 2100×1600mm | |
| Min. Sheet Size | 480×480mm | 650×500mm | 650×500mm | 750×650mm | |
| Max. Cutting Size | 1500×1100mm | 1620×1180mm | 1880×1380mm | 2080×1580mm | |
| Min. Gripper Margin | 9-17mm | 9-17mm | 9-17mm | 9-17mm | |
| Min. Width of Cuts | 10-18mm | 10-18mm | 10-18mm | 10-18mm | |
| Cutting Rule Height | 23.8mm | 23.8mm | 23.8mm | 23.8mm | |
| Inner Chase Size | 1600×1145mm | 1670×1230mm | 1920×1430mm | 2120×1630mm | |
| Stock Range | Corrugated board: ≤9mm,F,E,B,C,A and AB corrugated paper | Corrugated board: ≤9mm,F,E,B,C,A and AB corrugated paper | Corrugated board: ≤9mm,F,E,B,C,A and AB corrugated paper | Corrugated board: ≤9mm,F,E,B,C,A and AB corrugated paper | |
| Die Cutting Accuracy | ≤±0.15mm | ≤±0.2mm | ≤±0.2mm | ≤±0.2mm | |
| Max. Die Cutting Force | 400T | 400T | 450T | 450T | |
| Max. Working Speed | 6000s/h | 6000s/h | 5000s/h | 4000s/h | |
| Max. Delivery Pile Height | 1500mm(With pallet) | 1500mm(With pallet) | 1500mm(With pallet) | 1500mm(With pallet) | |
| Main Motor Wattage | 18.5KW | 18.5KW | 18.5KW | 22KW | |
| Full Load Wattage | 38KW | 38KW | 40KW | 47KW | |
| Air Requirement | Pressure: 0.6~0.7Mpa, Flow: ≥0.1m3/min | Pressure: 0.6~0.7Mpa, Flow: ≥1m3/min | Pressure: 0.6~0.7Mpa, Flow: ≥1m3/min | Pressure: 0.6~0.7Mpa, Flow: ≥1m3/min | |
| Net Weight of Machine | 39T | 41T | 46T | 51T | |
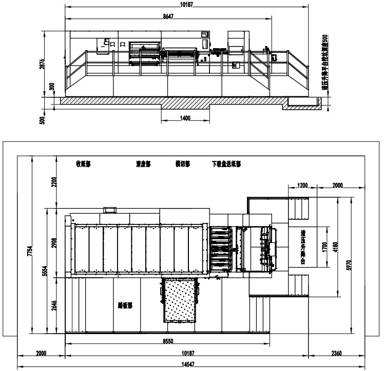
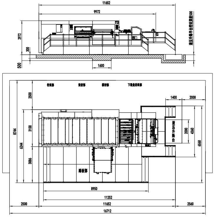
| Machine Dimensions(Stacking Delivery) | 9887×5500×2800mm(L×W×H) (L: paper prepared track included, W: platform included) | 10187×5970×2876mm(L×W×H) (L: paper prepared track included, W: platform included) | 11652×6560×2972mm(L×W×H) (L: paper prepared track included, W: platform included) | 14370×7160×2972mm(L×W×H) (L: paper prepared track included, W: platform included) | |
| Machine Dimensions(Batch Delivery Conveying) | 11400×5500×2800mm(L×W×H) (L: paper prepared track included, W: platform included) | 11892×5970×2876mm(L×W×H) (L: paper prepared track included, W: platform included) | 13489×6560×2972mm(L×W×H) (L: paper prepared track included, W: platform included) | 15870×7160×2972mm(L×W×H) (L: paper prepared track included, W: platform included) |



